MAP
Photos
Map
Schools

Carterton 433A Waiohine Gorge Road, Carterton

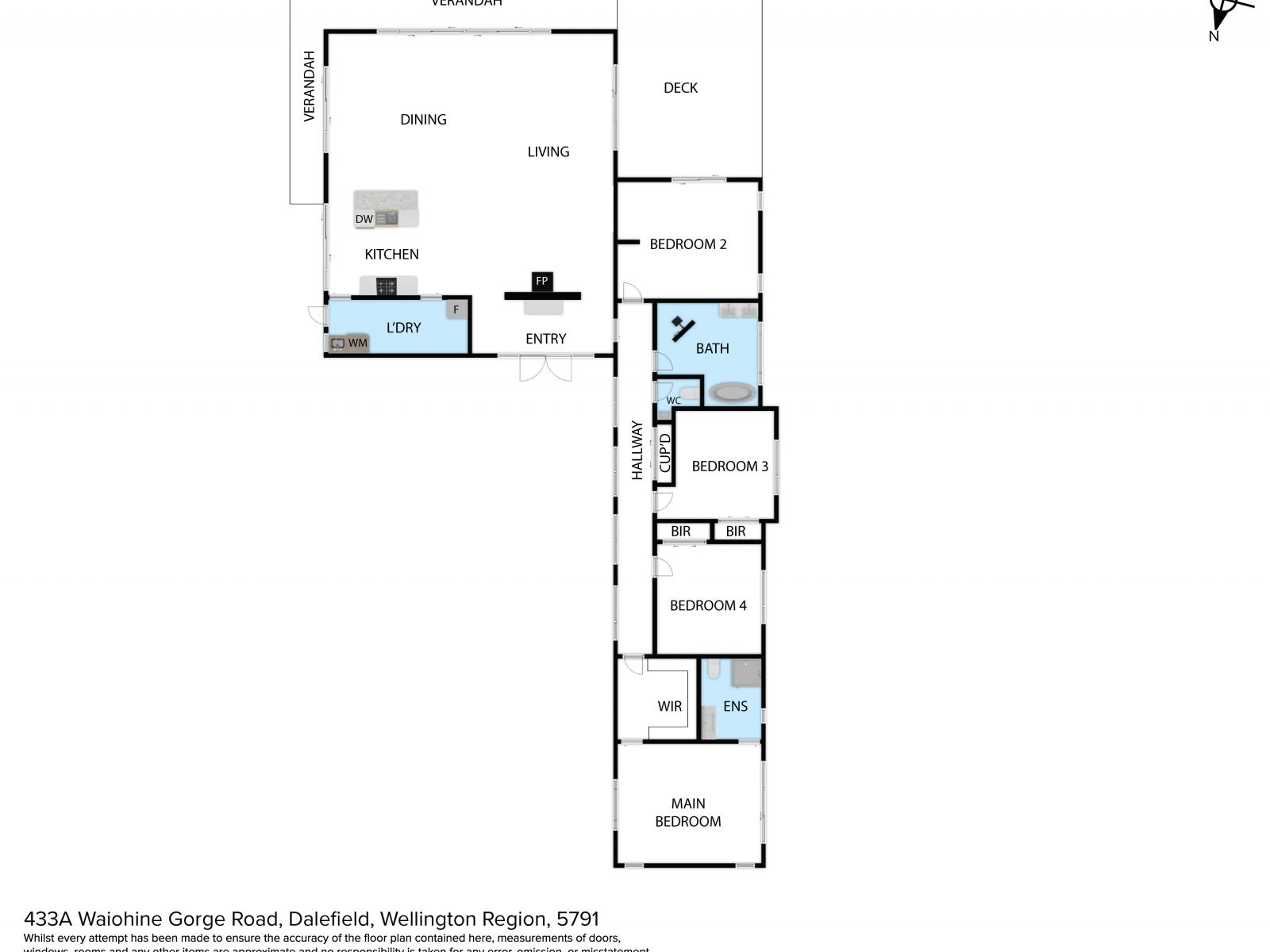
4 Bedrooms2 Bathrooms3 GaragesID GL218855
Tender (will not be sold prior)   5 March 2026   |   Property Brokers Limited, 2 Hastwell Street, Greytown   |   1:00pm

Waiohine elevated lifestyle river retreat

Seldom do properties in this desirable and spectacular location come to the market. Perched high above the Waiohine River with breathtaking panoramic views, this remarkable 4-bedroom, 2-bathroom brick and coloursteel family home masterfully blends modern comfort, low-maintenance ease, and true country charm. Set back off the road, a tree-lined private drive ensures seclusion, while the elevated position delivers tranquillity and endless river and bush vistas. This lifestyle home sits on 4.0 hectares, offering a rare chance to secure a fully developed country property where all the hard work has already been done.

The generous open-plan kitchen, dining, and living area forms the heart of the home, crowned by a soaring vaulted chapel ceiling and opening via four sets of sliding doors to an expansive wrap-around deck - perfect for year-round entertaining or simply soaking in the scenery.

The sleek kitchen impresses with a large central island, double oven, gas hobs, stainless-steel benchtops, spacious butler's pantry and attic access allowing for ample storage. The luxurious primary suite offers a walk-through wardrobe and tiled ensuite, while both bathrooms feature underfloor heating. Comfort is assured with double glazing, full insulation, a wood burner, heat transfer system, solar power, and wetback hot water.

Outdoors, the property is equally impressive, offering 3-car garaging, a pétanque court with gazebo, native plantings, fruit trees, raised vegetable gardens, spring water for troughs and abundant birdlife. Additional highlights include a chicken coop, six fully fenced paddocks, and a separate powered glade near the river, perfect for a caravan or a private retreat.

The property features direct river access, convenient proximity to Carterton and Greytown amenities, and a school bus stop at the end of the road. It's just a five-minute drive to Matarawa railway station, allowing for an easy commute to Wellington. This is a unique chance to enjoy spacious living, scenic views, and modern comforts in an outstanding location.
CHATTELS  Auto Garage Door Opener x1 and Remote x2   |   Bath   |   Blinds   |   Ceiling Fans x2   |   Dishwasher   |   Electric Stove - Built in x2   |   Hob/cooktop - Gas   |   Extractor Fan x3   |   Fixed Floor Coverings   |   Garden Shed   |   Heated Towel Rail x2   |   Letterbox   |   Light Fittings   |   Mirrors x2 (Bathrooms)   |   Range Hood   |   Satellite Dish (Sky)   |   Security Lighting   |   Smoke Detectors   |   TV Brackets    |   Water Tanks x2 20,000L   |   Chicken coop   |   Yards   |   Heater in Ensuite   |   Woodburner (Excluded Chattels: Bird Bath x3   |   Concrete Tubs x2)
Open Home
Sat 7 February 2026
11:00am - 11:30am
Features
Area | 300.00m2Land | 4.01 hectares(9.91 Acres)Rates | 3,863.70Regional rates | 3,863.70RV | 1,100,000
PRINT ENQUIRE NOW

Dave Stephenson

M  022 097 0143  P  06 390 0002

Jennah Rasmussen

M  022 406 7121  P  06 304 8007

Enquire Now










ASAP  0-2 months  3-6 months 
Yes  No 













Privacy Statement




Property Brokers Ltd MREINZ acknowledges and complies with the provisions of the Privacy Act 1993 and its amendments. In particular Property Brokers policy covers the following specific points relevant to this topic and this website:


Any client information you provide to Property Brokers will be used only for the purpose for which it is given and will not be passed on to any third party except in accordance with the law, or with specific consent.


In the main, this will be to facilitate company communication with you in order to better meet your real estate objectives and expectations.


Information provided by you will remain confidential to Property Brokers Real Estate Ltd MREINZ. This particularly applies to your reasons for selling which we regard and treat as a personal and private matter.


Any information divulged by you to any other website linked to the Property Brokers website is given at your discretion alone, and Property Brokers takes no responsibility for any disclosures that might result.


Information provided on this website is copyrighted to Property Brokers and may be accessed, downloaded and used for personal use only. The material must not be modified, copied or reproduced for gain or commercial use without the consent in writing of Property Brokers Real Estate Ltd MREINZ.


 




Google disclaimer


This website uses Google Analytics to help analyse how users use the site.


The tool uses "cookies," which are text files placed on your computer, to collect standard Internet log information and visitor behaviour information in an anonymous form.


The information generated by the cookie about your use of the website (including your IP address) is transmitted to Google. This information is then used to evaluate visitors use of this website and to compile statistical reports on website activity.


We will never (and will not allow any third party to) use the statistical analytics tool to track or to collect any Personally Identifiable Information of visitors to our site. Google will not associate your IP address with any other data held by Google. Neither we nor Google will link, or seek to link, an IP address with the identity of a computer user.


You may refuse the use of cookies by selecting the appropriate settings on your browser, however please note that if you do this you may not be able to use the full functionality of this website.


By using this website, you consent to the processing of data about you by Google in the manner and for the purposes set out above.


This website uses Google AdWords


This website uses the Google AdWords remarketing service to advertise on third party websites (including Google) to previous visitors to our site. It could mean that we advertise to previous visitors who havent completed a task on our site, for example using the contact form to make an enquiry. This could be in the form of an advertisement on the Google search results page, or a site in the Google Display Network. Third-party vendors, including Google, use cookies to serve ads based on someones past visits to the [CLIENT NAME] website. Of course, any data collected will be used in accordance with our own privacy policy and Googles privacy policy.


You can set preferences for how Google advertises to you using the Google Ad Preferences page, and if you want to you can
opt out of interest-based advertising entirely by cookie settings or
permanently using a browser plugin.


Dave Stephenson
Rapid SSL Site Seal
Similar Listings
78 Thomas Road
Carterton
OPEN HOME:  Sat 7th Feb 2026 10.00am - 10.30am

Set within a beautifully established lifestyle setting, this exceptional property offers a rare multi-dwelling opportunity featuring two fully self-contained ...

5 Bedrooms4 Bathrooms7 Car-parking
Tender 5 March 2026 Property Brokers Limited, 2 Hastwell Street, Greytown | 12:00pm
263 Millars Road
Carterton
OPEN HOME:  Sun 8th Feb 2026 1.45pm - 2.15pm

This near new Highmark home is set on just over 4 hectares and presents the perfect opportunity for those transitioning into their next chapter, whether upsizing ...

3 Bedrooms2 Bathrooms4 Garages
By Negotiation